Toggle navigation
Member
Center
Login
Register
Home
oldhouse
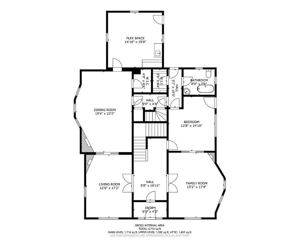
Beautiful woodwork! A lot of house for the money! C. 1913 in Maryland. $350,000
1225 Views
0 Comments
0 Likes
«
1
2
3
»
Click the pagination button above to continue reading.
Like (
0
)
Article category:
oldhouse
Article tags:
maryland
Article views:
1225
views
Post date:2025-07-04 16:19:08
Article url:
https://www.banxianovle.com/oldhouse/424.html
Prev >
Nice cabin on four acres in Minnesota! Short stroll to the lake. $199,900
Next >
Pretty setting! Circa 1890. On 16 acres in Maine. $349,900
A Redwood Kit Home from California, but in Maryland. Circa 1955.
Potential! Fixer upper alert on 12 acres in Maryland.
Potential! Fixer Upper Alert on 12 Acres in Maryland
In a quaint village near the Chesapeake Bay. Circa 1920 in Maryland.
Comment list
Total
0
Comments
No comments yet
Post a Comment
Cancel Reply
Login
Register
Post
Now
Leave
Comment
Back to
Top
Post a Comment Cancel Reply