Toggle navigation
Member
Center
Login
Register
Home
oldhouse
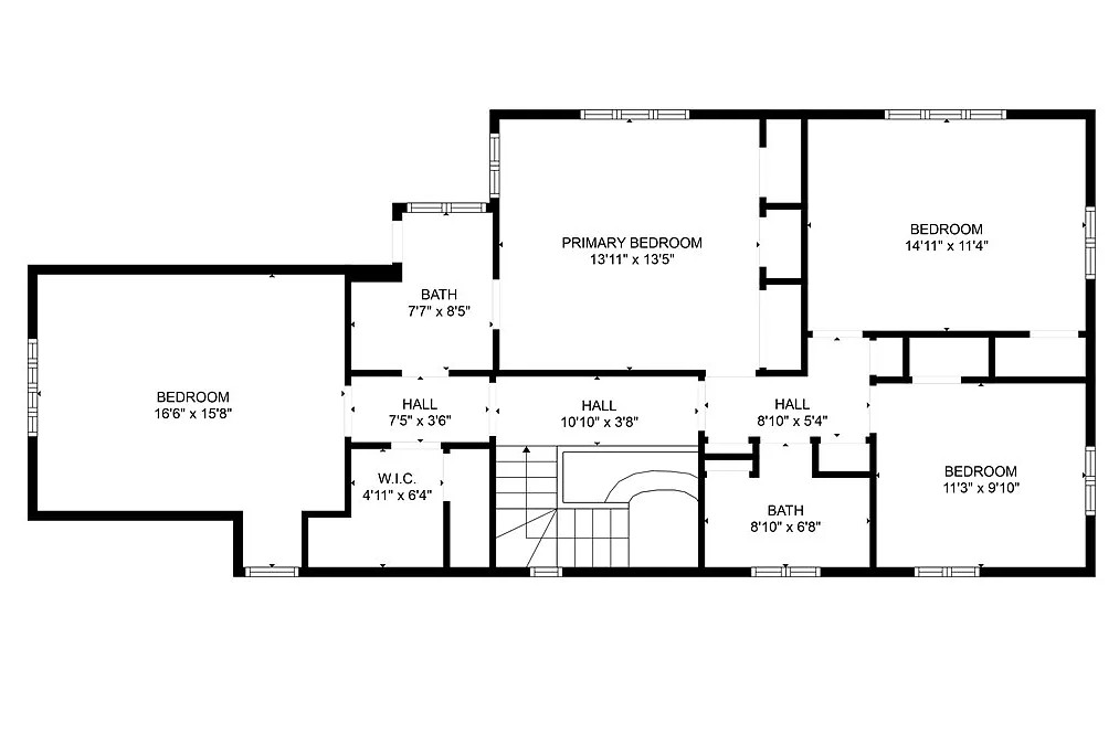
Pretty details inside! Circa 1941 in Pennsylvania. $334,900
617 Views
0 Comments
0 Likes
«
1
2
3
»
Click the pagination button above to continue reading.
Like (
0
)
Article category:
oldhouse
Article tags:
pennsylvania
Article views:
617
views
Post date:2025-09-24 14:45:00
Article url:
https://www.banxianovle.com/oldhouse/635.html
Prev >
Diamond in the Rough! Circa 1928 in South Carolina. $245,000
Next >
Beautiful setting! Over six acres in Virginia with a pool! $675,000
The Castle, Circa 1900. Three acres in Pennsylvania.
Schoolhouse Transformation! Circa 1890. Over an Acre in Pennsylvania
$145,000! Look at the woodwork and the stained glass! Circa 1900 in PA.
Has a guest apartment! 9 beds/4 baths. One acre in Pennsylvania. $220,000
Comment list
Total
0
Comments
No comments yet
Post a Comment
Cancel Reply
Login
Register
Post
Now
Leave
Comment
Back to
Top
Post a Comment Cancel Reply